販売物件
相模台団地2-1号棟303号室
相模台団地2-1号棟303号室
説明
| 所在地 | 神奈川県相模原市南区相模台団地2-1 |
|---|---|
| アクセス |
小田急小田原線「小田急相模原」駅より徒歩19分 |
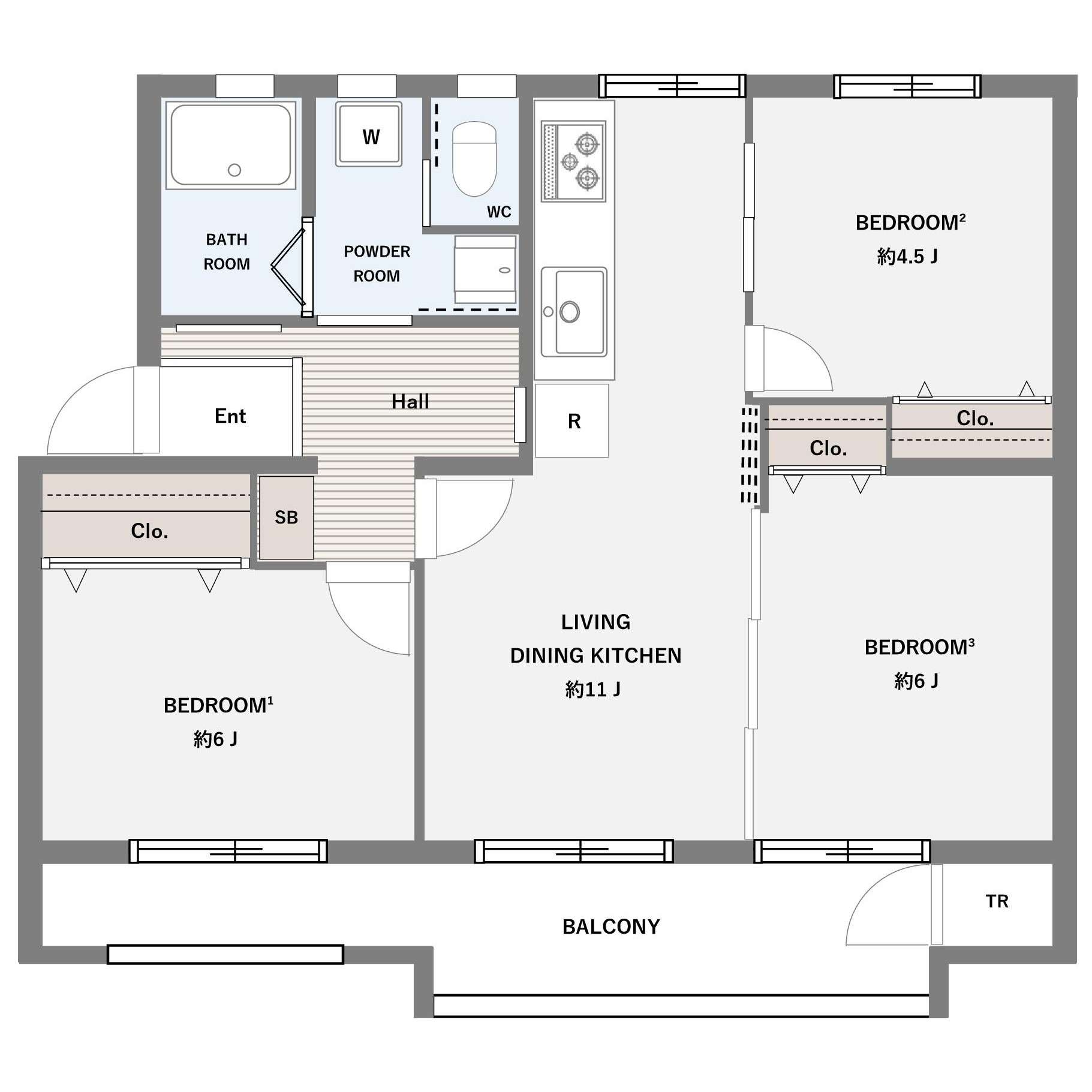
| 間取り | 3LDK |
| 価格 | 1680万円 |
| 専有面積 | 66.68㎡ |
| 築年月 | 1966年12月 |
| 構造 | 鉄筋コンクリート造5階建3階部分 |
| 管理費 | 月額4750円 |
| 修繕積立金 | 月額19530円 |
| 現状 | 空室/内装中(R8年6月中旬頃完成予定) |
| 駐車場 | 月額5500円 (2026年4月頃時点) |
リノベーション内容
| キッチン | 新規交換 |
|---|---|
| 浴 室 | 浴室交換 |
| 洗 面 | 洗面新規交換 |
| トイレ | 新規交換 |
| 玄 関 | 土間フロアタイル張り替え |
| 床 | フローリング張替え |
| その他 | 全クロス張替え/コンセントプレート スイッチ交換/エアコン先行配管/間取り変更/ シューズインクローゼット新設 |